Skip to Content
Open Menu
Close Menu
About
Resources
FAQs
Blog
Resource Links
Contact
(
0
)
Cart
(
0
)
Marketplace
About
Resources
FAQs
Blog
Resource Links
Contact
(
0
)
Cart
(
0
)
Marketplace
Open Menu
Close Menu
About
Folder:
Resources
Back
FAQs
Blog
Resource Links
Contact
Marketplace
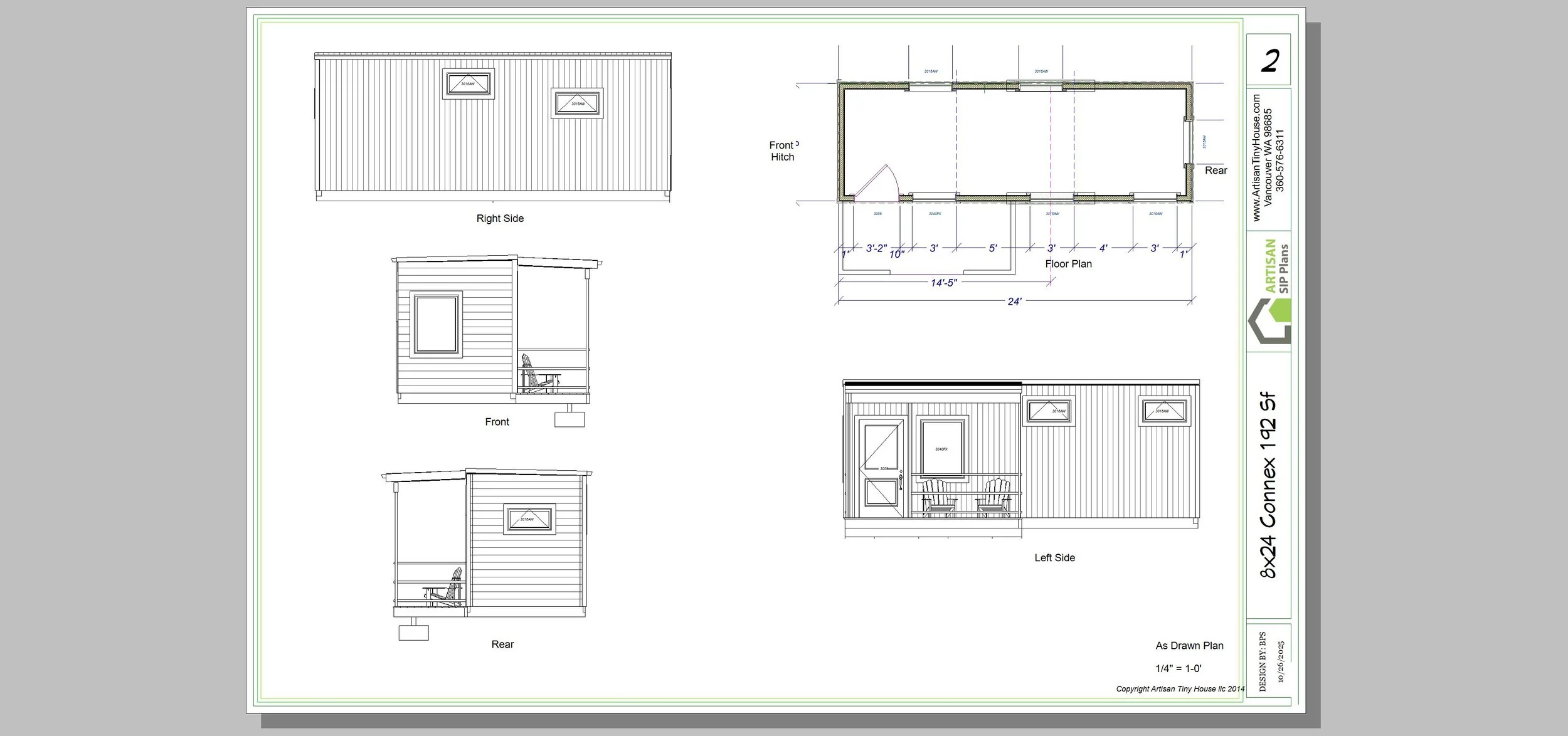
Sample Tiny House on Wheels Plan.